0
pt
Menu
Galeria Descrição Características Localização e Acessibilidades
Seguir Imóvel

Moradia Isolada T2

Angra do Heroísmo, Ilha Terceira

265 000 €

3311,26 €/m2
Simular Crédito Fazer Proposta
Faça uma proposta de negociação. Sem compromisso!
Dados Pessoais
Proposta
Enviar proposta
2 Quartos
789 m2 Terreno
80,03 m2 Área Útil
86,49 m2 Área Bruta
Descrição
Apartamento T2 com Vista Mar | Porto Judeu (Chave na mão)

Apresentamos um projecto de apartamento T2, inserido num edifício de elevada qualidade de construção, situado na pitoresca vila do Porto Judeu, concelho de Angra do Heroísmo.

Com vista mar e acabamentos de excelência, este imóvel combina conforto, modernidade e uma localização privilegiada, ideal para quem procura viver com tranquilidade sem abdicar da proximidade à cidade.

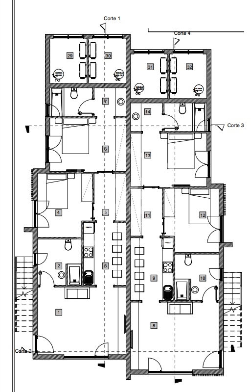
Com uma área total de 86 m², o apartamento é composto por:
  • Sala e cozinha em open space, com excelente luminosidade natural
  • Dois quartos amplos e confortáveis, 1 deles suite
  • Casa de banho moderna, com acabamentos de qualidade
  • Zona técnica
Localizado no rés do chão, o apartamento oferece acessos fáceis e um ambiente acolhedor, ideal tanto para habitação própria como para investimento.

📍 Fatores a destacar:
  • Situado no Porto Judeu, a poucos minutos de Angra do Heroísmo, perto de serviços e supermercado (Guarita)
  • Zona calma e com ótima exposição solar
  • Proximidade ao mar e a todos os serviços essenciais
  • Vista mar panorâmica para os ilhéus.
  • Estacionamento privativo (2 lugares por apartamento) 
 Área Bruta: 86.49 m2
Área útil: 80.06 m2
Área total terreno: 789m2
Preço por m2 de área util: 3311.26€ m2

Agende já a sua visita e deixe-se envolver pela visão deste projeto, onde poderá conhecer antecipadamente as soluções de arquitetura, a qualidade prevista dos acabamentos e todo o bem-estar que o apartamento promete entregar.

Filipe Costa
(+351) 963948243
filipecosta@dsimobiliaria.pt
DS Imobiliária Angra do Heroísmo
Lic. AMI: 20089

 
Ler mais
Referência: DSIANGR260
Tipo: Moradia Isolada
Objetivo: Venda
CE: Isento
Características
  • Água Canali. Rede pública
  • Electricidade
  • Vidros Duplos
  • Varandas
  • Exaustor
  • Fogão Eléctrico
  • Moveis (Cozinha)
  • Roupeiros embutidos
  • Jardim
  • Espaços Verdes
  • Mar
  • Vista para Mar
  • Residencial cidade
Localização

Vai comprar casa?

Simule ou seu crédito habitação
Valor de aquisição
Montante de Empréstimo
Valor de entrada inicial
A sua Idade
Prazo empréstimo anos
Tipo de taxa
Spread %
Prestação Mensal 0.00
Indexante 0.000%
TAN 0.000%
TAEG 0.000%
O valor da prestação apresentada não inclui Seguro de Vida e Seguro Lar. O Cálculo é baseado na precisão dos dados inseridos. A informação tem o objectivo de fazer uma ilustração apenas para informação geral, e não significa que foi aprovado para um empréstimo hipotecário. O Pagamento pode diferir, e será determinado na assinatura do contracto do empréstimo hipotecário. A calculadora destina-se a propriedades e hipotecas. Podem ser sujeites condições adicionais.
DS IMOBILIÁRIA ANGRA DO HEROISMO
DS IMOBILIÁRIA ANGRA DO HEROISMO
295 249...mostrar número Chamada para a rede fixa nacional

Interessado neste imóvel?

Enviar
Contactar

Imóveis semelhantes

Moradia T4
Moradia T4
Moradia T4
Moradia T4
Moradia T4
239 000 €
Moradia T4
Ilha Terceira, Angra do Heroísmo
4
193,96
140
Ligar Chamada para rede fixa nacional
Contactar
Moradia Isolada T2
Moradia Isolada T2
Moradia Isolada T2
Moradia Isolada T2
Moradia Isolada T2
285 000 €
Moradia Isolada T2
Ilha Terceira, Angra do Heroísmo
2
86
86
Ligar Chamada para rede fixa nacional
Contactar